2
$1,950,000 Sale
Listed 17 hours ago
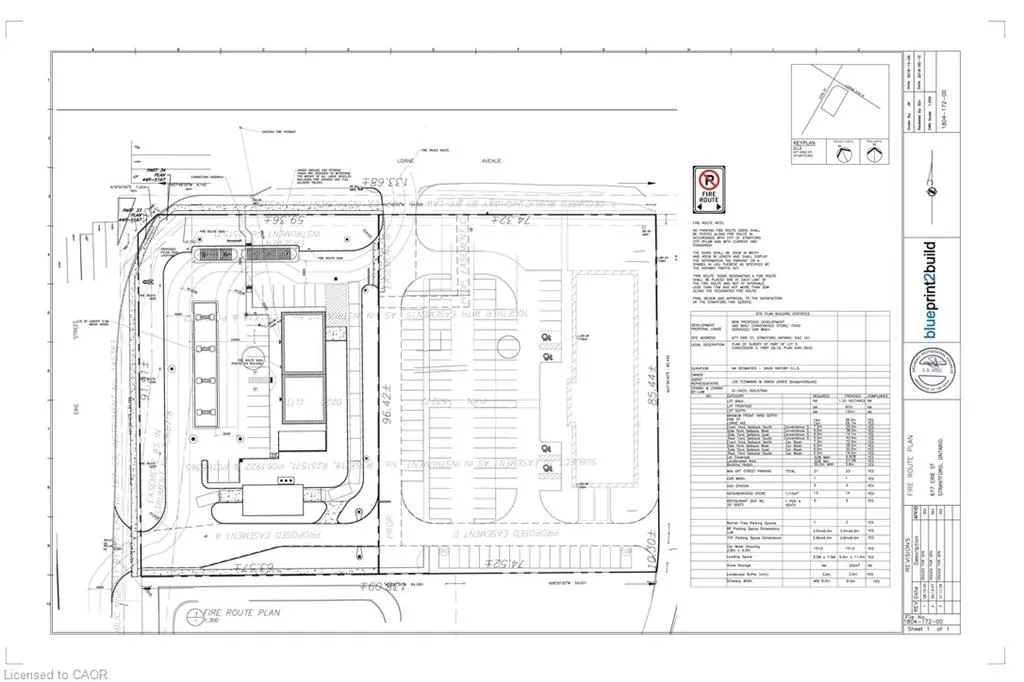
677 Erie Street
· 0
· 0
· -
· -
Key Facts
Key facts for 677 Erie Street
Property Type
Commercial
Parking
-
MLS #
40777185
Size
-
Basement
-
Listed on
2025-10-07
Lot size
-
Tax
$3,105 /yr
Days on Market
1
Year Built
-
Maintenance Fee
-
Description
**DEVELOPMENT OPPORTUNITY FOR FULL-SERVICE GAS BAR** Vacant, general industrial development site at 677 Erie Street in Stratford, Ontario available for sale. The Site is approximately 1.5 acres (6,118.4 m2) and located at the southeast corner of the intersection of Lorne Avenue East and Erie Street.... The Site is a shovel-ready development and slated for a full-service gas bar with a convenience store, car wash and two leasable retail units. A Record of Site Condition and a Certificate of Property Use have been issued for the Property. Risk Management Measures have been outlined by the Ministry of the Environment and the Vendor has commission reports that outline compliance measures and estimated costing. The Site is located at the southwest entrance into Stratford, a city located along the scenic Avon River within Perth County, known for its rich agricultural community and diverse heritage and culture. Located immediately southeast of the Site, is a hotel development site that is approximately 1.8 acres (7,181.6 m2) in size that is also available for sale by the Vendor. **PLEASE CONTACT LISTING AGENT FOR MORE INFO INCLUDING ACCESS TO VIRTUAL DATA ROOM**, Directions:Located on the southeast corner of the intersection of Lorne Avenue East and Erie Street in Stratford, Ontario., Exclusions:
Similar Properties (No results)
Listing courtesy of: BEECHWOOD REAL ESTATE ADVISORS BROKERAGE INC